Supermax Architect & Interior Designers has been a trusted name in providing comprehensive architectural and interior design solutions. From custom home plans and layout designs to 3D elevations and all essential technical drawings like structural and working plans, we offer a wide range of services tailored to meet your unique needs. Our expertise extends to obtaining necessary sanctions, including BBMP, Panchayath, and BDA, along with services such as Vasthu plans, estimation, and Matte Film for all your design requirements.
We specialize in 3D visualization, making it easier than ever for our clients to visualize their dream spaces through 3D floor plans and layouts. Our team’s commitment to quality and client satisfaction sets us apart from others in the industry. We believe in listening to our customers, learning from their feedback, and continuously improving our processes. This dedication allows us to provide a streamlined, affordable, and enjoyable design...
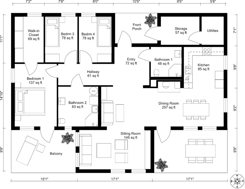
Our architectural plans are designed to bring your vision to life, combining creativity, functionality, and precision. At Supermax Architect & Interior Designers, we work closely with you to un...
Interior design is an art that transforms a house into a home, a workspace into a productive environment, or a commercial area into an inviting space. At Supermax Architect & Interior Designers...
Elevations are a crucial aspect of architectural design, providing a visual representation of a building’s exterior. At Supermax, we offer expertly crafted elevation designs that enhance the ...
Designing apartment plans requires a meticulous approach to ensure optimal space utilization and comfort for residents. At Supermax, we specialize in creating apartment layouts that balance functio...
A well-structured layout plan is the foundation of any successful project, and we excel in creating plans that optimize land use while maintaining harmony with the surrounding environment. At Super...
Structural designs form the backbone of any construction project, ensuring stability, safety, and durability. Our team at Supermax specializes in crafting structural designs that align with the arc...
Securing Panchayath Sanctions is a crucial step in the construction process, ensuring that your project complies with local government regulations. At Supermax, we assist you in obtaining all neces...
Digital survey marking is a precision-driven process that ensures accurate land measurements and layouts for construction projects. At Supermax, we use state-of-the-art digital survey equipment to ...
Column and footing marking is a critical step in the construction process, ensuring structural stability and accuracy. At Supermax, we employ advanced digital tools to mark columns and footings wit...
Soil testing is a vital step in understanding the suitability of the land for construction. At Supermax, we offer comprehensive soil testing services, analyzing soil composition, strength, moisture...
A well-structured layout plan is the foundation of any successful project, and we excel in creating plans that optimize land use while maintaining harmony with the surrounding environment. At Super...
Obtaining BBMP (Bruhat Bengaluru Mahanagara Palike) sanctions is a critical step in any construction project within Bengaluru. At Supermax, we assist you in navigating the complex approval process,...
The Bangalore Development Authority (BDA) sanction is essential for projects falling under its jurisdiction. Supermax provides end-to-end assistance in securing BDA approvals, ensuring compliance w...
Vastu Shastra is an ancient Indian science that harmonizes architecture with nature to enhance prosperity and well-being. At Supermax, we integrate Vastu principles into our designs, creating space...
Blueprints are the cornerstone of any construction project, providing a detailed representation of the design and technical specifications. At Supermax, we create high-quality blueprints that serve...

An increasing number of interior designers focus on sustainable and eco-friendly design practices.
Email Us:
supermaxarchitect73@gmail.com